Дом "СЛАВЕН" от IZBURG

Домовладение №18

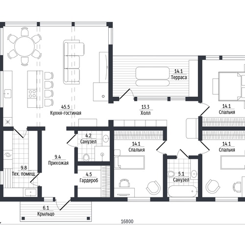
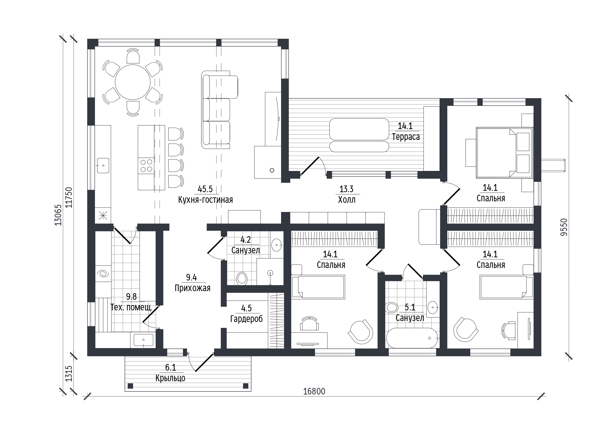
Характеристики

Площадь участка 10 соток
Общая площадь дома 148,20 м2
Жилая площадь дома 87,80 м2
Кол-во этажей 1
Кол-во спален 3
Кол-во санузлов 2
Терраса 20,20 м2
Фундамент Железобетонная плита
Материал стен Скандинавская технология

В этом году покажем дом под названием «СЛАВЕН», который точно не оставит равнодушным.

Это проект площадью 150 м², в котором мы соединили два мира: русскую архитектурную традицию и современный скандинавский подход.

Ажурный декор карнизов, выразительное крыльцо, атмосфера «дома из сказки» – и одновременно панорамные окна, фальцевая кровля и вертикальная имитация бруса.

Но главная ценность этого дома – не только внешний вид. Это действительно продуманная, удобная планировка для жизни семьи.

  • Просторная кухня-гостиная 45,5 м² – центр дома, где собирается вся семья.
  • Три изолированные спальни по 14,1 м² – комфорт для каждого.
  • Отдельный гардероб 4,5 м² и вместительная прихожая 9,4 м² – никакого хаоса в вещах.
  • Два санузла (4,2 и 5,1 м²) – без утренних очередей.
  • Техническое помещение 9,8 м² – всё инженерное оборудование скрыто и удобно.
  • Просторный холл 13,3 м² – ощущение воздуха и свободы.

Каждый метр здесь продуман не «для красоты», а для реальной

жизни.

Мы участвуем в выставках Open Village с 2019 года, и наши дома регулярно получают высокие оценки жюри и гостей. Уверены, что и в этот раз проект станет одним из самых обсуждаемых.

По традиции покажем дом в формате «заходи и живи»: с полной инженерией, чистовой отделкой, мебелью и благоустроенным участком 🏡

Автор проекта Светлана Спешилова

Главный застройщик

Другие участники строительства

Фото

Планы

Материалы и информация о домовладении предоставлена Участником-застройщиком, администрация сайта ответственность за содержание и достоверность данной информации не несет

Предпродажа билетов



Подробнее
о выставке

Мероприятие проходит в коттеджном поселке Московской области. Все Домовладения (экспонаты) являются настоящими жилыми домами. А еще Open Village – это настоящий семейный отдых на природе: летнее кафе, детские аниматоры, лекции и мастер-классы по строительству ремонту и многое другое.

Приходите – вам обязательно понравится!

Узнайте о старте продаж билетов заранее.
Мы пришлем уведомление, как только откроется продажа.

Узнать о старте продаж