Дом "Holtsov Барн 6.3" от HoltsovHouse

Домовладение №25

Характеристики

Площадь участка 9,74 соток
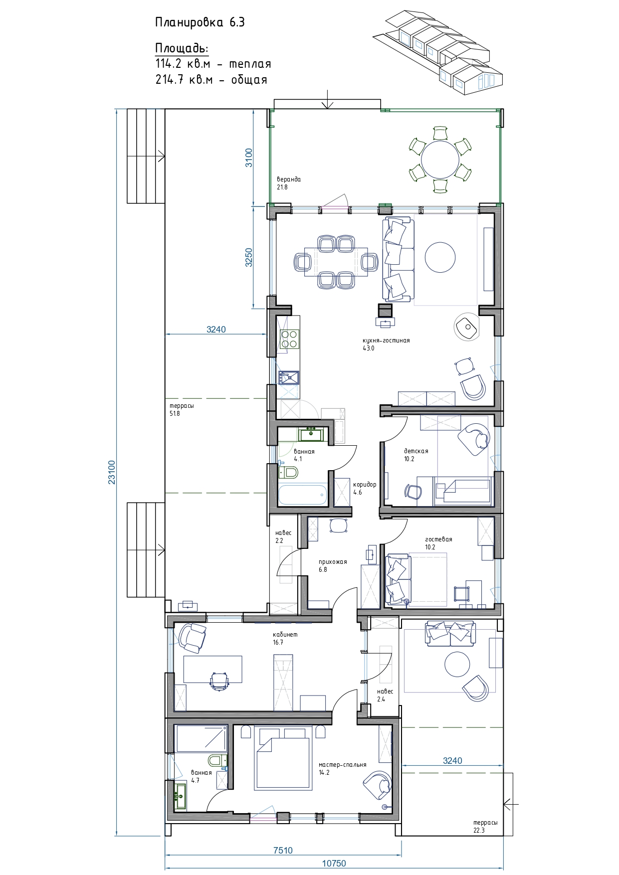
Общая площадь дома 214,70 м2
Жилая площадь дома 114,20 м2
Кол-во этажей 1
Кол-во спален 3
Кол-во санузлов 2
Терраса 100,50 м2
Фундамент Винтовые сваи
Материал стен Каркас

Дом «Holtsov Барн» выполнен по каркасной технологии имеет тёплую площадь дома 114,2 кв. м и типовую комплектацию.

Боковые фасады отделаны профлистом (RAL 7024), а торцевые — сухой строганой доской, покрытой уличной пропиткой Sikkens. Террасы и ступени также изготовлены из доски хвойных пород и защищены пропиткой Sikkens.

Внутренняя отделка включает стены и потолок из имитации бруса карельского профиля, окрашенной белым лаком на водной основе. В качестве напольного покрытия используется кварцвинил с текстурой дерева, а санузел отделан керамической мозаичной плиткой.

Инженерное оснащение дома предполагает полную разводку электрики и водопровода, систему защиты от протечек «Нептун», а также электрические конвекторы и инфракрасный тёплый пол. Вентиляция обеспечивается приточно-вытяжными рекуператорами Vakio. Установлены деревянные оконные профили с двойным контуром уплотнения и двухкамерными стеклопакетами.

Все проекты HoltsovHouse реализуются «под ключ» и включают в себя полную отделку и инженерное оснащение.

Главный застройщик

Фото

Планы

Материалы и информация о домовладении предоставлена Участником-застройщиком, администрация сайта ответственность за содержание и достоверность данной информации не несет

Предпродажа билетов



Подробнее
о выставке

Мероприятие проходит в коттеджном поселке Московской области. Все Домовладения (экспонаты) являются настоящими жилыми домами. А еще Open Village – это настоящий семейный отдых на природе: летнее кафе, детские аниматоры, лекции и мастер-классы по строительству ремонту и многое другое.

Приходите – вам обязательно понравится!

Узнайте о старте продаж билетов заранее.
Мы пришлем уведомление, как только откроется продажа.

Узнать о старте продаж