Дом "Адель" от Fjorden

Домовладение №3

Характеристики

Площадь участка 9 соток
Общая площадь дома 232,20 м2
Жилая площадь дома 182,20 м2
Кол-во этажей 2
Кол-во спален 5
Кол-во санузлов 3
Терраса 40 м2
Фундамент Утеплённая шведская плита
Материал стен Заводские панели

Дом «Адель» — энергоэффективный дом заводского производства в скандинавском стиле. 

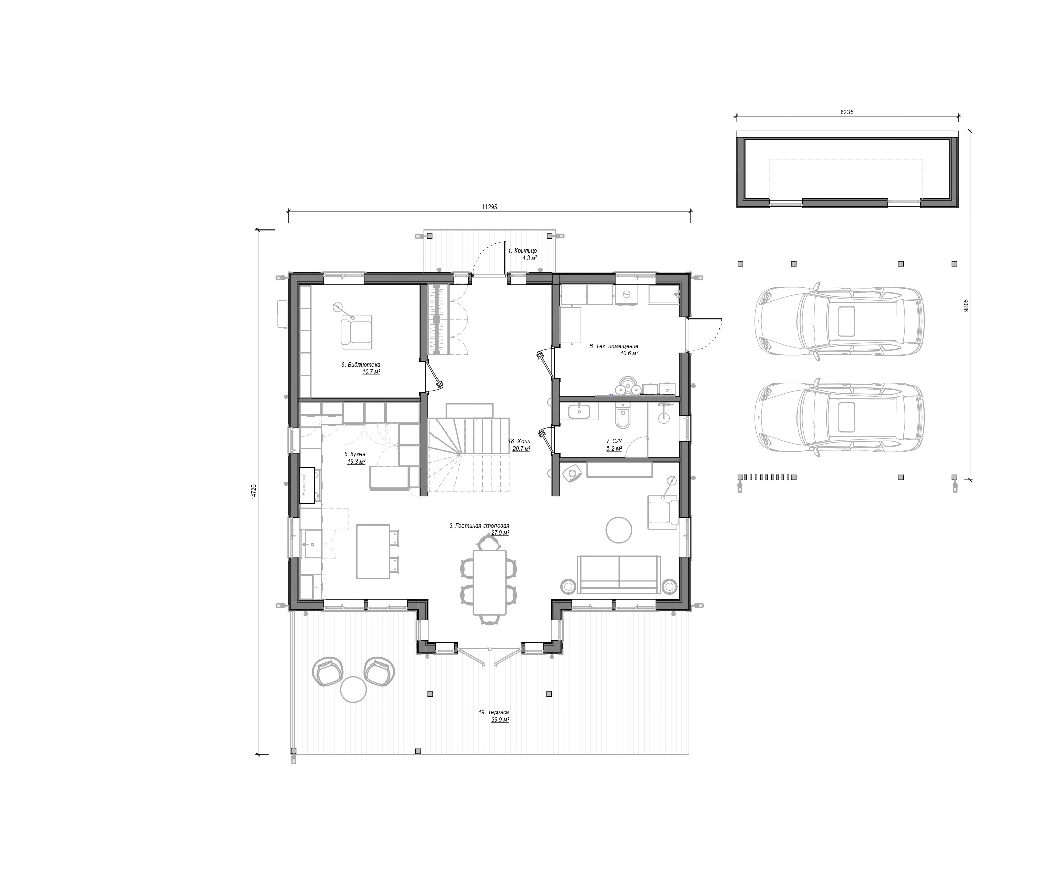
Жилая площадь дома – 182.2 м2, площадь террасы 40 м2.

1 этаж: Открытая кухня-гостиная с выходом на террасу, библиотека, ванная комната, котельная с отдельным входом с зоны парковки.

2 этаж: 4 спальни, включая мастер-спальню с гардеробом и ванной, холл с балконом, санузел.

Дополнительно: 

Пергола на террасе дома площадью 14 м2. 

Навес для авто и хозблок общей площадью 57 м2 — часть архитектурного ансамбля. Возможность хранения инвентаря и зарядки электромобиля.

Ландшафтный дизайн включает дренаж, зонирование и посадку многолетних растений.

Технология строительства

Все элементы дома, включая фасадную отделку, производятся на заводе. Это обеспечивает высокую точность сборки, скорость монтажа и стабильное качество.

Утеплённая монолитная железобетонная плита с интегрированными инженерными коммуникациями.

Инженерные решения: комфорт и контроль

Полностью готовый модуль, изготовленный на собственном производстве. Включает оборудование для отопления, водоподготовки и автоматику ZONT с удалённым управлением. Монтаж занимает 1 день.

Приточно-вытяжная система с рекуперацией сохраняет тепло и очищает воздух.

Кондиционирование Cool box работает бесшумно, поддерживая заданную температуру.

Главный застройщик

АРХИТЕКТУРА:
Fjorden

Другие участники строительства

Стоимость

Стоимость участка 23 000 000 руб.
Проектирование 222 000 руб.
Подведение коммуникаций к дому 332 000 руб.
Возведение коробки (теплый контур) 17 799 000 руб.
Инженерное оснащение дома 4 490 000 руб.
Дизайн проект 900 000 руб.
Внутренняя отделка, мебель, декор 10 500 000 руб.
Ландшафт 3 500 000 руб.
Автонавес 3 800 000 руб.
Пергола 470 000 руб.
Итого: 65 013 000 руб.

Фото

Планы

Материалы и информация о домовладении предоставлена Участником-застройщиком, администрация сайта ответственность за содержание и достоверность данной информации не несет

Предпродажа билетов



Подробнее
о выставке

Мероприятие проходит в коттеджном поселке Московской области. Все Домовладения (экспонаты) являются настоящими жилыми домами. А еще Open Village – это настоящий семейный отдых на природе: летнее кафе, детские аниматоры, лекции и мастер-классы по строительству ремонту и многое другое.

Приходите – вам обязательно понравится!

Узнайте о старте продаж билетов заранее.
Мы пришлем уведомление, как только откроется продажа.

Узнать о старте продаж