Дом "ИВА" от ИНБРУС

Домовладение №22

Характеристики

Площадь участка 10 соток
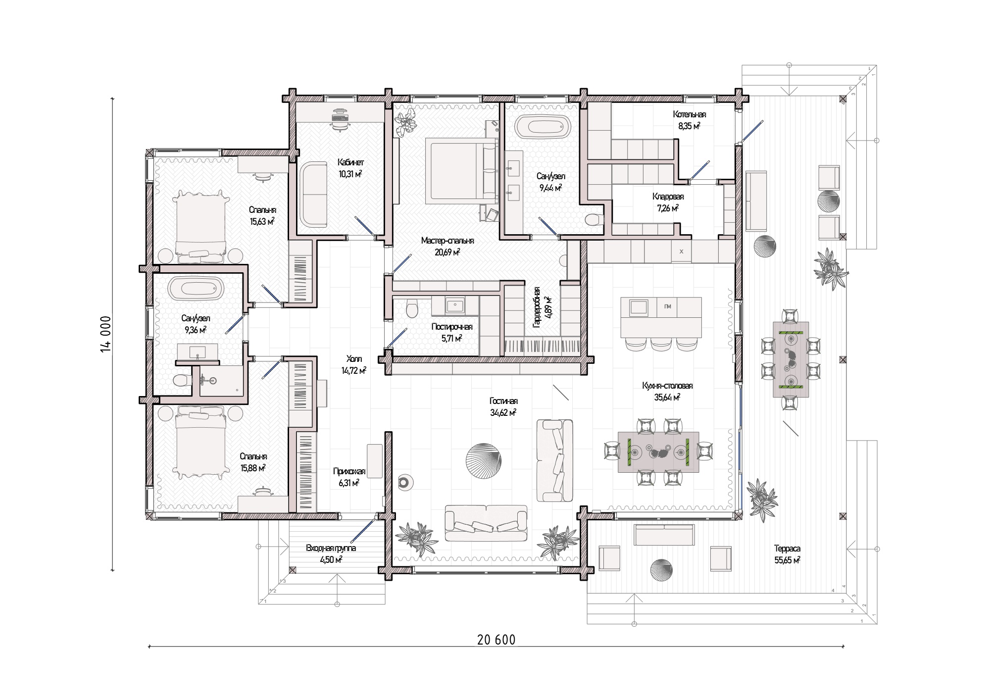
Общая площадь дома 259 м2
Жилая площадь дома 204 м2
Кол-во этажей 1
Кол-во спален 3
Кол-во санузлов 3
Терраса 56 м2
Фундамент ж/б сваи 200х200мм
Материал стен Клееный брус

Дом встречает не криком, а спокойной уверенностью благородного дерева. Сечение бруса 275 на 202мм - это даже не просто стена, это климат-контроль от природы. Летом здесь царит прохлада, зимой тепло копится в толще дерева, экономя электроэнергию.

Сердце дома- Гостиная с панорамным остеклением, через огромное стекло, пространство вырывается на улицу, сливаясь с участком, что граница "дом-сад" исчезает.

Гостиная плавно перетекает в кухню. Вы не отгорожены от готовящихся близких глухой стеной. Интересная деталь-"незаметная дверь". За этой дверью скрывается технический центр дома: котельная и кладовая с выходом на террасу.

Личное пространство: Мастер-спальня. Это настоящий пентхаус внутри дома. Высокие потолки, большое окно и собственная атмосфера уюта.

Две спальни. Чуть меньше по метражу, но столь же теплые и тихие. Дети или гости будут спать как в "Коконе" благодаря акустическому комфорту бруса.

Кабинет-тихое и уютное место для работы, где вы сможете уединиться.

Это не просто дом. Это место, где брус формирует микроклимат соснового бора внутри помещения. Стены дышат, регулируя влажность: зимой воздух не пересушен, летом нет духоты. Вы любите этот дом за ощущение защищенного убежища и одновременно за свободу (панорамное остекление).

Вы в этом доме счастливы!

Главный застройщик

АРХИТЕКТУРА:
ИНБРУС

Другие участники строительства

Окна Штандарт
GNATURE

Фото

Планы

Материалы и информация о домовладении предоставлена Участником-застройщиком, администрация сайта ответственность за содержание и достоверность данной информации не несет

Предпродажа билетов



Подробнее
о выставке

Мероприятие проходит в коттеджном поселке Московской области. Все Домовладения (экспонаты) являются настоящими жилыми домами. А еще Open Village – это настоящий семейный отдых на природе: летнее кафе, детские аниматоры, лекции и мастер-классы по строительству ремонту и многое другое.

Приходите – вам обязательно понравится!

Узнайте о старте продаж билетов заранее.
Мы пришлем уведомление, как только откроется продажа.

Узнать о старте продаж