Дом "Джером" от содружества СТРОИМ ПО ПРАВИЛАМ | LH47 | MARYART DESIGN

Домовладение №12

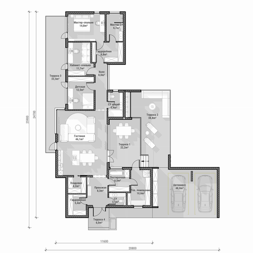
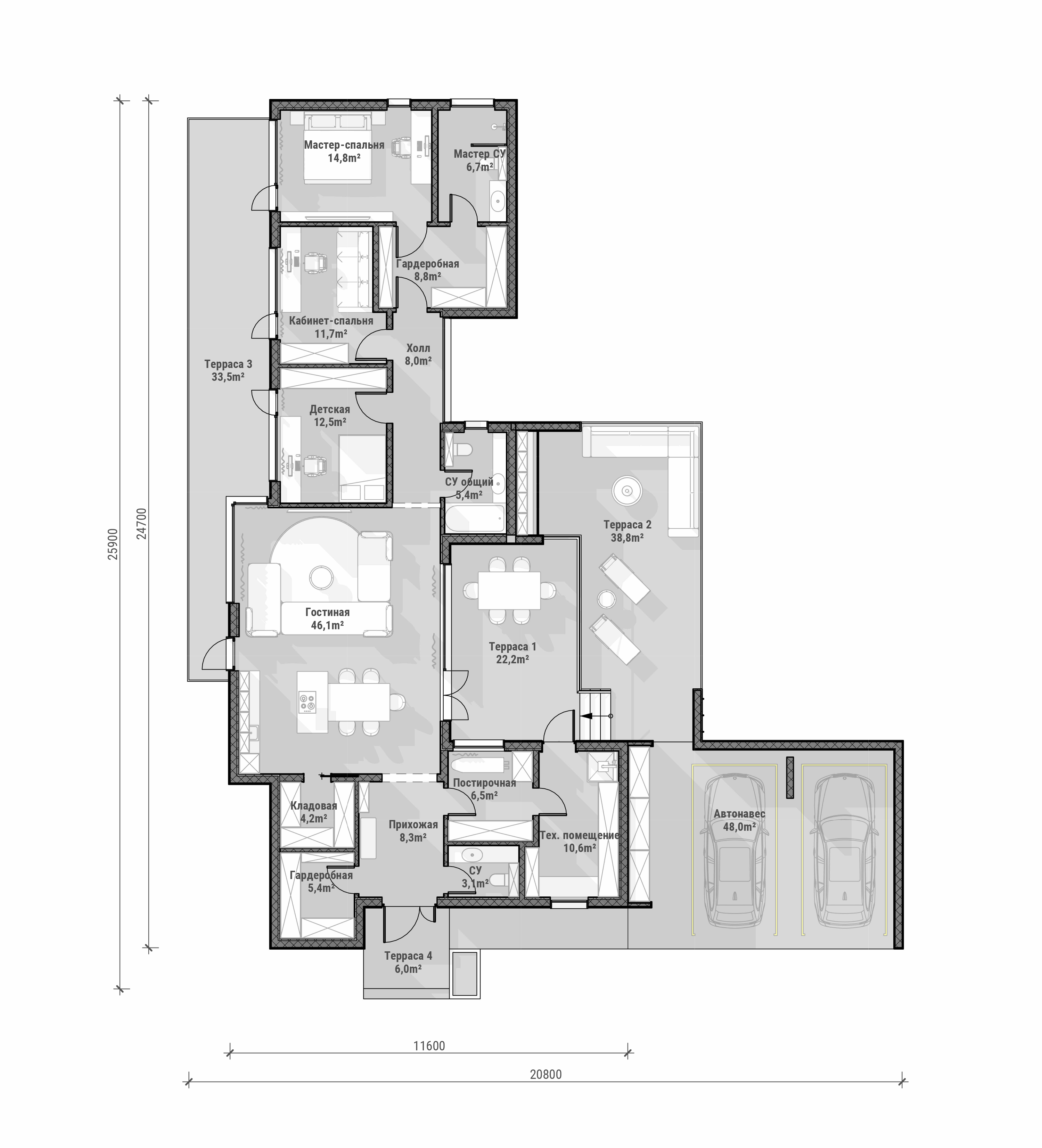
Характеристики

Площадь участка 10,98 соток
Общая площадь дома 328,70 м2
Жилая площадь дома 151,90 м2
Кол-во этажей 3
Кол-во спален 3
Кол-во санузлов 3
Терраса 148,60 м2
Фундамент Железобетонный, свайно-ригельный
Материал стен Каркасные

Однажды три компании-энтузиаста объединились, чтобы пересмотреть подход к созданию домов. Вдохновляясь классикой, они заложили в свой проект главную идею: «Нужно легко относиться к жизни, уметь смеяться над собой и брать с собой только самое необходимое».

Так, налегке, наши смелые путешественники — архитектурное бюро LH47, интерьерная студия MARYART DESIGN и строительная компания [СТРОИМ ПО ПРАВИЛАМ] — отправились в путь. В поисках новых идей, смелых решений и красивых пространств. Каждый участник вложил в проект всё своё мастерство, поэтому успех и любовь аудитории стали неизбежны.

Дом «Джером» — понятный, эргономичный, светлый и просторный. Он создан из нежного рассвета, улыбок родных, аромата утреннего кофе, лая четвероногого друга, топота детских ножек, дневной суеты, семейного кино, вкусного ужина и спокойного сна.

«Джером» включает в себя долговечные и экологичные материалы, качественные инженерные решения и утончённый дизайн. И, конечно, — ничего лишнего.

В центре дома создатели разместили главную зону для семьи — просторную кухню-гостиную с выходом на двухуровневую террасу. Для отдыха предусмотрена мастер-спальня с гардеробной и собственной ванной, а также две отдельные спальни.

Каждой семье нужны функциональные помещения — и они учтены: прихожая, гардеробная, два санузла, постирочная, кладовая и котельная (10,6 м²). Всё это органично вписано в планировку.

«Джером» — проект, вдохновлённый идеей, отточенный временем и созданный мастерами ради счастья других людей.

Фото

Планы

Материалы и информация о домовладении предоставлена Участником-застройщиком, администрация сайта ответственность за содержание и достоверность данной информации не несет

Предпродажа билетов



Подробнее
о выставке

Мероприятие проходит в коттеджном поселке Московской области. Все Домовладения (экспонаты) являются настоящими жилыми домами. А еще Open Village – это настоящий семейный отдых на природе: летнее кафе, детские аниматоры, лекции и мастер-классы по строительству ремонту и многое другое.

Приходите – вам обязательно понравится!

Узнайте о старте продаж билетов заранее.
Мы пришлем уведомление, как только откроется продажа.

Узнать о старте продаж