Дом "Дом с Умом 170" от Баухаус

Домовладение №25

Характеристики

Площадь участка 9,27 соток
Общая площадь дома 236 м2
Жилая площадь дома 110 м2
Кол-во этажей 2
Кол-во спален 3
Кол-во санузлов 3
Терраса 38,50 м2
Фундамент Монолитная плита
Материал стен Железобетонные панели
VI

-6-и кратный Участник Выставки



«Дом с Умом 170» — это готовое типовое решение от компании «БАУХАУС» для вашей загородной жизни! Данный дом соответствует всем современным критериям комфорта, безопасности, долговечности и энергоэффективности.

Как и выставочный дом, все наши объекты мы возводим в максимальной степени готовности к проживанию. Здесь продумано и реализовано все, начиная от фундамента и заканчивая меблированием, без привлечения сторонних специалистов.

Проектом предусмотрены:

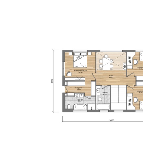
1 этаж:

  • Просторная кухня-гостиная
  • Рабочий кабинет/гостевая спальня
  • Гостевой с/у, котельная, гардероб и холл

2 этаж:

  • Мастер-спальня с собственным гардеробом и с/у
  • Детские спальни №1 и №2
  • Детский с/у, холл
  • Второй свет над кухней-гостиной/дополнительная спальня/гардероб/кабинет

Дополнительно:

  • Крытая терраса
  • Навес на 2 автомобиля с хоз. блоком для хранения
  • Летняя беседка

В качестве фундамента дома используется монолитная плита, стеновой материал – железобетонные панели, кровля – деревянные стропильные фермы заводского изготовления.

Мы перенесли ключевые этапы строительства на производство, где можем с большей ответственностью проконтролировать качество их выполнения и минимизировать ошибки и погрешности на стройплощадке.

Мы строим только по типовым проектам, которые разрабатываем самостоятельно, что позволяет нам предложить для вас: отсутствие рисков, прозрачную и фиксированную смету, продуманные оптимальные технические решения, а также качественные материалы по умолчанию!

Главный застройщик

Фото

Планы

Материалы и информация о домовладении предоставлена Участником-застройщиком, администрация сайта ответственность за содержание и достоверность данной информации не несет

Предпродажа билетов



Подробнее
о выставке

Мероприятие проходит в коттеджном поселке Московской области. Все Домовладения (экспонаты) являются настоящими жилыми домами. А еще Open Village – это настоящий семейный отдых на природе: летнее кафе, детские аниматоры, лекции и мастер-классы по строительству ремонту и многое другое.

Приходите – вам обязательно понравится!

Узнайте о старте продаж билетов заранее.
Мы пришлем уведомление, как только откроется продажа.

Узнать о старте продаж